πŸ’Ž Budget-Highlight in der Eckartsberger Straße: Frisch, hell & bezugsfertig! 🏠✨

Eckartsberger Straße 46, 02763 Zittau

Daten

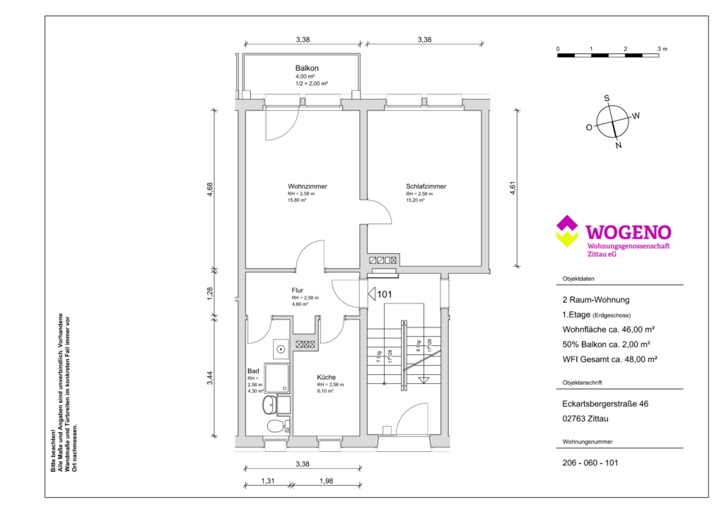
Zimmer 2
Etage Hochparterre
WohnflΓ€che 48,00 mΒ²
Kaltmiete 320,40 €
Gesamtmiete 469,20 €
Anteile 930,00 €
Heizungsart Zentralheizung
BezugsfΓ€hig ab sofort
Objektnummer 206/60/101

Objekt anfragen

Ausstattung

Du suchst eine Wohnung, die dein Konto schont, aber trotzdem nach „Zuhause“ aussieht? Dann schau dir dieses SchmuckstΓΌck an! Hier bekommst du eine frisch renovierte Wohnung mit top Aufteilung und viel Tageslicht. β˜€οΈ

πŸ›‹οΈ Die WohnrΓ€ume: WohlfΓΌhlen leicht gemacht

Dunkle Ecken suchst du hier vergeblich! Die Wohnung ΓΌberzeugt durch ein klares, freundliches Erscheinungsbild:

  • Bodenbelag: In den WohnrΓ€umen ist ein BelagΒ in heller Holzoptik verlegt

  • WΓ€nde: Alle RΓ€ume sind frisch in Weiß gestrichen. Du musst nur noch deine MΓΆbel reintragen und dich einrichten. 🎨

  • Besonderheit Balkon: Das Wohnzimmer ist das HerzstΓΌck und bietet Zugang zum eigenen Balkon. Der perfekte Ort fΓΌr deine Pflanzen oder den Kaffee nach der Arbeit.


🍳 Die Küche: Platz für deine Kochideen

Die KΓΌche ist ein separater Raum (keine EssensgerΓΌche im Schlafbereich!) und sehr funktional gestaltet:

  • Tageslicht: Ein großes Fenster sorgt fΓΌr beste Sicht beim Kochen und Vorbereiten. πŸ”ͺπŸ…

  • Vorbereitet: Der helle Fliesenspiegel ist bereits an der Wand. Alle AnschlΓΌsse fΓΌr Herd und SpΓΌle sind vorhanden. 🚰⚑

  • Boden: Ein robuster, heller Bodenbelag sorgt fΓΌr Sauberkeit und Ordnung. 🧼


🚿 Das Badezimmer: Deine kleine Frische-Oase

Klein, aber fein! Hier wurde an alles Wichtige gedacht:

  • Fenster-Bad: Ein echtes Plus in dieser Preisklasse! Endlich kein beschlagener Spiegel mehr und immer frische Luft.

  • Ausstattung: Eine moderne Duschkabine, ein helles Waschbecken und ein praktischer HandtuchheizkΓΆrper fΓΌr warme HandtΓΌcher im Winter. 🧣πŸ”₯

  • Farben: Warme, terrakottafarbene Bodenfliesen treffen auf zeitlose weiße Wandfliesen. 🧱

πŸ“Š Die wichtigsten Fakten im Überblick

Merkmal Dein Vorteil
Zustand Renoviert & sauber – kein Stress mit Handwerkern! πŸ› οΈπŸš«
Licht Lichtdurchflutet durch große Fenster in jedem Raum. πŸ’‘
Sicherheit Solide WohnungstΓΌren und ein ordentliches Treppenhaus. πŸ”’
Preis Absoluter Spar-Sieger – viel Wohnraum fΓΌr wenig Geld! πŸ’°πŸš€

Objektbeschreibung

Entdecken Sie Ihre neue Wohnung im Norden der Stadt Zittau! Diese ideale Lage bietet Ihnen die kürzeste Zufahrt zur Bundesstraße 178 und zur Autobahn A 4.

In nur 600 m Entfernung finden Sie alles, was Sie fΓΌr den tΓ€glichen Bedarf benΓΆtigen: SupermΓ€rkte wie Netto und Penny, einen GetrΓ€nkemarkt, BΓ€cker, Fleischer und GΓ€rtner. Auch die BahnhΓΆfe der DB und der Zittauer Schmalspurbahn sowie mehrere Bushaltestellen sind bequem zu erreichen.

FΓΌr Ihre medizinische Versorgung stehen Ihnen Γ„rzte, Physiotherapien und eine Apotheke in der NΓ€he zur VerfΓΌgung. Zudem finden Sie die Sparkasse, eine Kindereinrichtung und ein Seniorenheim in unmittelbarer Umgebung.

Der historische Stadtkern und das Theater sind in nur etwa 20 Minuten erreichbar – perfekt fΓΌr kulturelle AusflΓΌge! Und wenn Sie Erholung suchen, lΓ€dt der BΓΌrgerpark gleich um die Ecke zum Entspannen ein.

Machen Sie Zittau zu Ihrem neuen Zuhause! 🏑✨

Unser Fazit:

Diese Wohnung beweist, dass „gΓΌnstig“ auch richtig schick und einladend sein kann. Ideal fΓΌr Alleinstehende, Paare oder die erste eigene Wohnung! πŸ”‘πŸŽ’

Kontakt

Energieausweis

Heizungsart Zentralheizung
Baujahr 1963
EnergietrΓ€ger/Befeuerung Erdgas
Energieausweistyp Energieverbrauchsausweis
Energiekennwert 85,2

Lage

Kontakt

Herr Thomas Strobel
Herr Thomas Strobel
Sachbearbeiter

    Ihre Anfrage

    * Pflichtfeld